Plan Maison 100m2 à étage Avec Garage

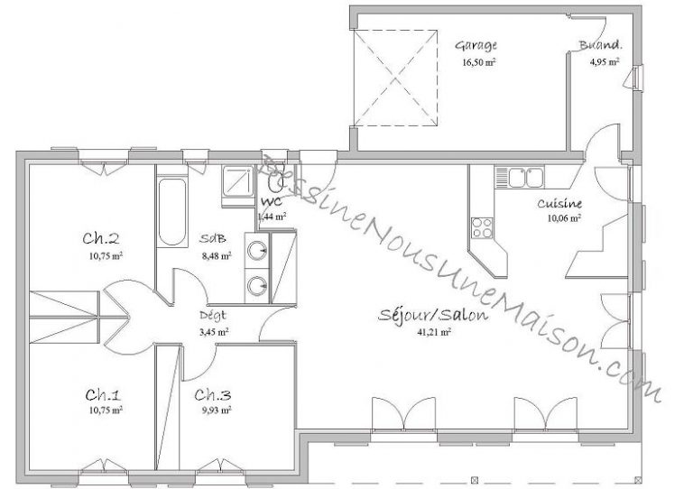
La maison de plain-pied avec garage de 100m2, proposée par Plan Maison Québec, est une option de plus en plus prisée par les Québécois. Ce n'est pas un hasard : elle combine confort moderne, optimisation de l'espace et fonctionnalité, répondant ainsi aux besoins de nombreuses familles.
Pourquoi un tel succès ? Imaginez la facilité d'accès à toutes les pièces, un atout considérable pour les personnes à mobilité réduite ou les familles avec de jeunes enfants. Finis les escaliers ! De plus, la présence d'un garage intégré est un avantage indéniable, surtout en hiver, pour protéger votre véhicule des intempéries.
Pour les familles, cette configuration offre une vue d'ensemble sur les enfants jouant dans les pièces de vie. L'absence d'escaliers réduit les risques d'accidents. Le garage intégré peut aussi servir d'atelier de bricolage ou d'espace de rangement supplémentaire. Imaginez les possibilités infinies!
Must Read
Concrètement, comment en profiter ? Plan Maison Québec propose des plans modifiables et personnalisables. Pensez à bien définir vos priorités : cuisine ouverte ou fermée, nombre de chambres, agencement du garage. Prenez le temps de visualiser votre quotidien dans cette future maison.
Un exemple : un couple de jeunes retraités souhaitait une maison facile à entretenir et adaptée à leurs besoins futurs. Ils ont opté pour un modèle de plain-pied avec garage, modifiant légèrement les plans pour y intégrer une grande véranda donnant sur le jardin.

Un autre exemple : une jeune famille a choisi ce type de maison pour la sécurité qu'elle procure aux enfants et la facilité d'aménagement. Ils ont transformé une partie du garage en salle de jeux, un vrai bonheur pour les petits!
En résumé, la maison de plain-pied avec garage de 100m2 proposée par Plan Maison Québec est une solution intelligente et adaptable pour un grand nombre de personnes. Elle représente un investissement sur le long terme, synonyme de confort, de sécurité et de bien-être au quotidien.
